| 微信 : Adelaidehelp 联系邮箱 : [email protected] 开启辅助访问
  • 【Harcourts美家|出售】Glenunga学区联排|低总价入场优 ...

    浏览人气 : 1041
    6/571 Portrush Road, Glenunga, SA 5064 Property Number : 1614239 价格 : 4月12日下午1:30现场拍卖 2 1 1

    William Bai & Chuan Qu

    联系方式 :
    0402427738 or 0451900109

    看房时间

    看房时间1 :

    看房时间2 :

    地理位置

    【Harcourts美家|出售】Glenunga学区联排|低总价入场优质东区

    [复制链接]

    本内容为网友发布信息,仅代表原作者观点,不代表本平台立场。

    位于Adelaide东区Glenunga板块,地理位置优越,靠近Burnside Village,交通便利,生活配套完善。
    房屋位于Glenunga International High School及Linden Park Primary校区,具备较高的保值及出租潜力。

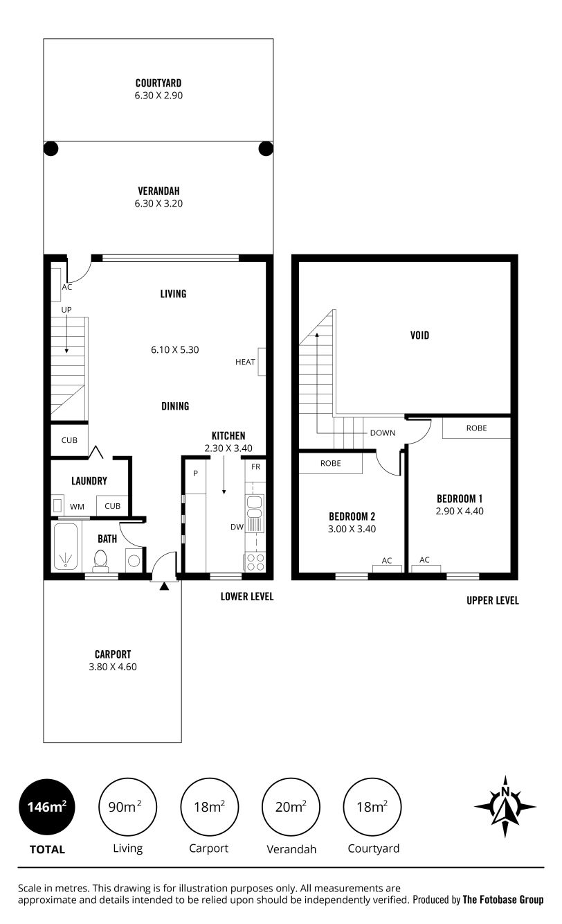
    房屋为两层结构,2房1卫1车位,内部布局实用:
    • 一层为客厅、餐厅及厨房,采光良好,并连接后院
    • 二层为两个卧室,均配有内置衣柜及空调
    • 卫浴经过翻新,整体维护状况良好

    适合首次购房者、学区需求买家或投资者。


    有意请联系William或Chuan
    ezgif-2-a402708a16.jpg ezgif-2-a402708a16 - 副本.jpg
    _MG_0021.jpg _MG_9935a.jpg _MG_9940a.jpg _MG_9945-copy.jpg _MG_9930.jpg _MG_9960.jpg _MG_9970.jpg _MG_0011-copy.jpg _MG_0006.jpg _MG_9900.jpg _MG_9915.jpg _MG_9975-copy.jpg _MG_9980.jpg Ic_1076190.jpg

    BBS提醒: 请避免提前支付订金、押金等任何费用,请与对方当面沟通,确认资质并看清条款。谨防上当受骗。

    免责声明: 本网站所提供的信息,只供参考之用。本网站不保证信息的准确性、有效性、及时性和完整性。本网站及其雇员一概毋须以任何方式就任何信息传递或传送的失误、不准确或错误,对用户或任何其他人士负任何直接或间接责任。在法律允许的范围内,本网站在此声明,不承担用户或任何人士就使用或未能使用本网站所提供的信息或任何链接所引致的任何直接、间接、附带、从属、特殊、惩罚性或惩戒性的损害赔偿。

    回复

    使用道具 举报

    您需要登录后才可以回帖 登录 | 注册

    本版积分规则

    其他网友还看了 ...

    Copyright @ 2022 AdelaideBBS.com. All rights reserved. User Agreement

    客服号

    公众号