| 微信 : Adelaidehelp 联系邮箱 : [email protected] 开启辅助访问
  • 奢华新作 · 对望绿境 Campbelltown全新四居府邸 让生活 ...

    浏览人气 : 1182
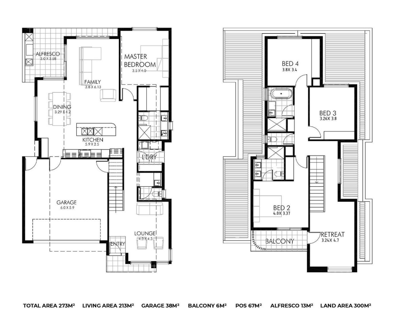
    LOT 1–7 / 2 Hillside Court, Campbelltown, SA 5074 Property Number : 1612790 价格 : 126-157万 4 3.5 2

    Daniel Yin

    联系方式 :
    0430 883 028

    看房时间

    看房时间1 : 联系中介

    看房时间2 :

    地理位置

    奢华新作 · 对望绿境 Campbelltown全新四居府邸 让生活每天都像在度假

    [复制链接]

    本内容为网友发布信息,仅代表原作者观点,不代表本平台立场。

    在宁静与绿意相伴的Campbelltown中心地段 一组精致的Torrens Title独立产权四居别墅期房项目The Reserve隆重登场
    面朝Raymel Reserve苍翠的绿地景观 发展商Kyavko集团期待在这片成熟而充满家庭氛围的社区 为您开启现代生活的新篇章

    17bcebf34f714c58ffa97c1baa0c93da.jpg

    限量七套 · 奢华登场

    为家庭而生 为舒适而筑 每一栋住宅皆以当代美学与实用格局为核心 双层设计尽显空间张力
    3.5卫浴 上下层双主卧套房
    宽阔开放式起居空间与二层休闲区 完美平衡生活的舒适与格调


    户外生活 · 自成一景

    -  每户皆配备Alfresco遮蔽式后院 内置烧烤台户外厨房 让日常生活与惬意娱乐完美融合

    -  1–4号府邸更可俯瞰Raymel Reserve绿树美景的阳台 将自然风景延伸至家中在绿意环绕中奢享人生

    7b65197813b92220657dda4b76c6186b.jpg

    Lot1.jpg

    优雅细节 · 品质尽显

    - 上下两层主卧套房皆配奢华卫浴

    - 所有卧室均设步入式或嵌入式衣柜

    - SMEG 全套厨房设备

    - 石材厨房台面

    - 全墙瓷砖卫浴独立浴缸 单/双人洗手台

    - 卧室铺设高档地毯温润柔和

    - 全屋中央冷暖空调系统

    - 全屋LED照明+厨房卫浴装饰灯 设计感拉满

    - 后院遮蔽式娱乐餐区 + 户外厨房与BBQ设施

    - 配备雨水储水罐景观绿化与信箱

    5173bbccf2be3ee00d14fc1a6e32f98b.jpg

    953e1aece6454cc06c009119f8cd785d.jpg

    宜居社区 · 近享繁华

    步行可达RaymelReserve公园 著名的East Marden小学 LochielPark高尔夫球场与The ARC运动休闲中心

    周边咖啡馆与餐厅 商业购物林立 生活便利而充满活力

    5a69e4a063a13d7e20efde8bdf639765.jpg
    Lot5.jpg


    优越地段 · 价值不凡

    - 7.2公里直达阿德莱德CBD

    - 到174巴士站仅650米

    - 位于East Marden小学(仅600-700米)与Charles Campbell College (2.2公里) 双学区

    - 到幼儿园Emali Early Learning Centre仅700米

    - 到ARC运动休闲中心 仅800米

    - 到Campbelltown购物广场 / Foodland超市 仅850米

    - 到Lochiel公园高尔夫球场 仅850米

    - 到Mecato餐饮购物广场 仅1公里

    - 到O-Bahn Paradise Interchange巴士中转站仅1.8公里

    - 土地+建筑 拎包入住配套套餐(House & Land Package)可节省数万印花税

    - 符合条件者 可获首次置业补助FHOG

    - 土地面积从246-329平米不等 建筑面积从259-273平米不等

    - 预计2027年下半竣工交付 仅有7栋

    - 了解详情请速☎️Daniel 0430 883 028

    BBS提醒: 请避免提前支付订金、押金等任何费用,请与对方当面沟通,确认资质并看清条款。谨防上当受骗。

    免责声明: 本网站所提供的信息,只供参考之用。本网站不保证信息的准确性、有效性、及时性和完整性。本网站及其雇员一概毋须以任何方式就任何信息传递或传送的失误、不准确或错误,对用户或任何其他人士负任何直接或间接责任。在法律允许的范围内,本网站在此声明,不承担用户或任何人士就使用或未能使用本网站所提供的信息或任何链接所引致的任何直接、间接、附带、从属、特殊、惩罚性或惩戒性的损害赔偿。

    回复

    使用道具 举报

    您需要登录后才可以回帖 登录 | 注册

    本版积分规则

    其他网友还看了 ...

    Copyright @ 2022 AdelaideBBS.com. All rights reserved. User Agreement

    客服号

    公众号