| 微信 : Adelaidehelp 联系邮箱 : [email protected] 开启辅助访问
  • 【Harcourts美家】南区Glengowrie三房别墅整租

    浏览人气 : 96
    23 Baker Street, Glengowrie, SA 5044 Property Number : 1604968 价格 : 580 3 1 2

    Kyle

    联系方式 :
    0426020421

    看房时间

    看房时间1 : Wednesday 21 January From 12:30–12:50 pm

    看房时间2 : Friday 23 January From 4:30–4:50 pm

    地理位置
    打印 上一主题 下一主题

    【Harcourts美家】南区Glengowrie三房别墅整租

    [复制链接]

    本内容为网友发布信息,仅代表原作者观点,不代表本平台立场。

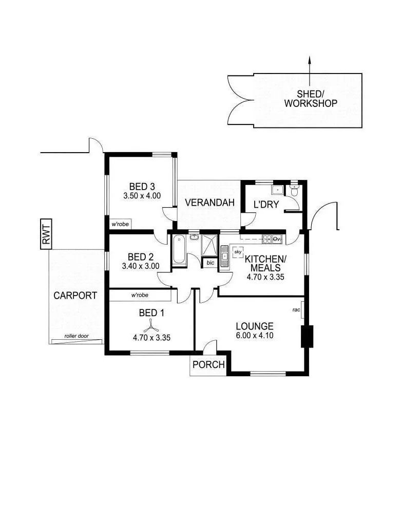
    [color=rgba(0, 0, 0, 0.9)]位于宽敞地块上的的住宅,兼具舒适性、便利性和备受追捧的宁静生活方式。无论您是想要一个放松的空间,还是方便到达各类设施,这处房产都能满足您的需求。
    [color=rgba(0, 0, 0, 0.9)]地理位置优越,毗邻Glenelg繁华的购物和餐饮区、Marion购物中心、公共交通和美丽的海滩,这里将宁静与便利完美结合。
    [color=rgba(0, 0, 0, 0.9)]
    [color=rgba(0, 0, 0, 0.9)]主要特点:
    • 宽敞的正式客厅,舒适宜居
    • 带用餐区的大型厨房
    • 三间宽敞卧室,其中两间配有嵌入式衣柜
    • 独立洗衣房,方便实用
    • 带车棚以及充足的路边停车位
    • 多功能棚屋或工作间,提供额外储物空间
    • 精心维护的户外空间,适合休闲放松

    [color=rgba(0, 0, 0, 0.9)]
    [color=rgba(0, 0, 0, 0.9)]2026年2月1日可入住
    [color=rgba(0, 0, 0, 0.9)]
    [color=rgba(0, 0, 0, 0.9)]* 押金 - 相当于 4 周租金
    [color=rgba(0, 0, 0, 0.9)]* 租期 - 6个月only
    [color=rgba(0, 0, 0, 0.9)]* 不带家具
    [color=rgba(0, 0, 0, 0.9)]
    [color=rgba(0, 0, 0, 0.9)]申请链接:https://www.realestate.com.au/pr ... lengowrie-440847532
    [color=rgba(0, 0, 0, 0.9)]
    有意联系 Kyle(加微信请备注地址)




    640 (1).jpg (76.47 KB, 下载次数: 1)

    640 (1).jpg

    640 (2).jpg (147.21 KB, 下载次数: 1)

    640 (2).jpg

    640 (3).jpg (161.47 KB, 下载次数: 0)

    640 (3).jpg

    640 (4).jpg (139.14 KB, 下载次数: 0)

    640 (4).jpg

    640 (5).jpg (169.05 KB, 下载次数: 0)

    640 (5).jpg

    BBS提醒: 请避免提前支付订金、押金等任何费用,请与对方当面沟通,确认资质并看清条款。谨防上当受骗。

    免责声明: 本网站所提供的信息,只供参考之用。本网站不保证信息的准确性、有效性、及时性和完整性。本网站及其雇员一概毋须以任何方式就任何信息传递或传送的失误、不准确或错误,对用户或任何其他人士负任何直接或间接责任。在法律允许的范围内,本网站在此声明,不承担用户或任何人士就使用或未能使用本网站所提供的信息或任何链接所引致的任何直接、间接、附带、从属、特殊、惩罚性或惩戒性的损害赔偿。

    收藏收藏 顶 踩
    回复

    使用道具 举报

    您需要登录后才可以回帖 登录 | 注册

    本版积分规则

    其他网友还看了 ...

    Copyright @ 2022 AdelaideBBS.com. All rights reserved. User Agreement

    客服号

    公众号