| 微信 : Adelaidehelp 联系邮箱 : [email protected] 开启辅助访问
  • 东区payneham 近新townhouse 3房2卫双车库

    浏览人气 : 6898
    7/4 Nelson Street, Payneham, SA 5070 Property Number : 1369997 价格 : 580 3 2 2

    Gloria

    联系方式 :
    0430043003

    看房时间

    看房时间1 :

    看房时间2 :

    地理位置
    打印 上一主题 下一主题

    东区payneham 近新townhouse 3房2卫双车库

    [复制链接]

    本内容为网友发布信息,仅代表原作者观点,不代表本平台立场。

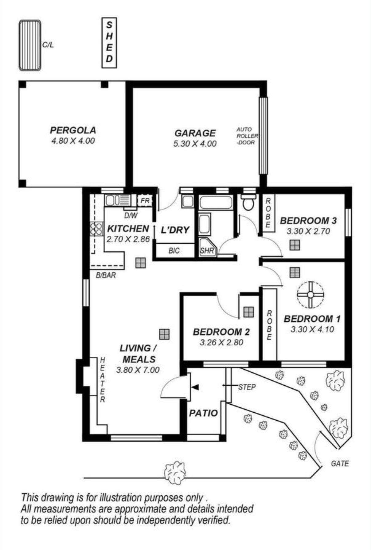
    东区Payneham近新Townhouse,3房2卫双车库 $580/周
    房屋有太阳能,基本不用交电费,地理位置优越
    步行可到Marden商城 6分钟
    步行200米到公车第12站,进city仅需20分钟
    楼上:
    主卧带浴室及walk-in衣柜
    另外2间大房均带衣柜
    小厅一个及浴室一套
    楼下:
    开放式厨房煤气做饭
    超级大客厅
    厕所,洗衣房
    花园简单易打理,有空调
    现可入住
    离city 5KM

    floorplan1.jpg (20.92 KB, 下载次数: 223)

    floorplan1.jpg

    image2.jpg (38.56 KB, 下载次数: 216)

    image2.jpg

    image4.jpg (40.33 KB, 下载次数: 214)

    image4.jpg

    image5.jpg (32.46 KB, 下载次数: 230)

    image5.jpg

    image6.jpg (31.4 KB, 下载次数: 204)

    image6.jpg

    image8.jpg (54.58 KB, 下载次数: 212)

    image8.jpg

    image12.jpg (27.02 KB, 下载次数: 202)

    image12.jpg

    image9.jpg (60.75 KB, 下载次数: 201)

    image9.jpg

    main.jpg (32.58 KB, 下载次数: 211)

    main.jpg

    Gloria QR code.jpg (37.06 KB, 下载次数: 200)

    Gloria QR code.jpg

    BBS提醒: 请避免提前支付订金、押金等任何费用,请与对方当面沟通,确认资质并看清条款。谨防上当受骗。

    免责声明: 本网站所提供的信息,只供参考之用。本网站不保证信息的准确性、有效性、及时性和完整性。本网站及其雇员一概毋须以任何方式就任何信息传递或传送的失误、不准确或错误,对用户或任何其他人士负任何直接或间接责任。在法律允许的范围内,本网站在此声明,不承担用户或任何人士就使用或未能使用本网站所提供的信息或任何链接所引致的任何直接、间接、附带、从属、特殊、惩罚性或惩戒性的损害赔偿。

    收藏收藏 顶 踩
    回复

    使用道具 举报

    msyxxctc5 发表于 27-6-2022 01:20:18 来自手机
    约看房 以加微信 wx:msyxxctc5
    回复 支持 反对

    使用道具 举报

    您需要登录后才可以回帖 登录 | 注册

    本版积分规则

    其他网友还看了 ...

    Copyright @ 2022 AdelaideBBS.com. All rights reserved. User Agreement

    客服号

    公众号