| 微信 : Adelaidehelp 联系邮箱 : [email protected] 开启辅助访问
  • $300主卧独立卫浴近Flinders和Westfield Ma

    查看数: 128 | 评论数: 2 | 收藏 0
    关灯 | 提示:支持键盘翻页<-左 右->
      组图打开中,请稍候......
    发布时间: 15-12-2025 06:01

    正文摘要:

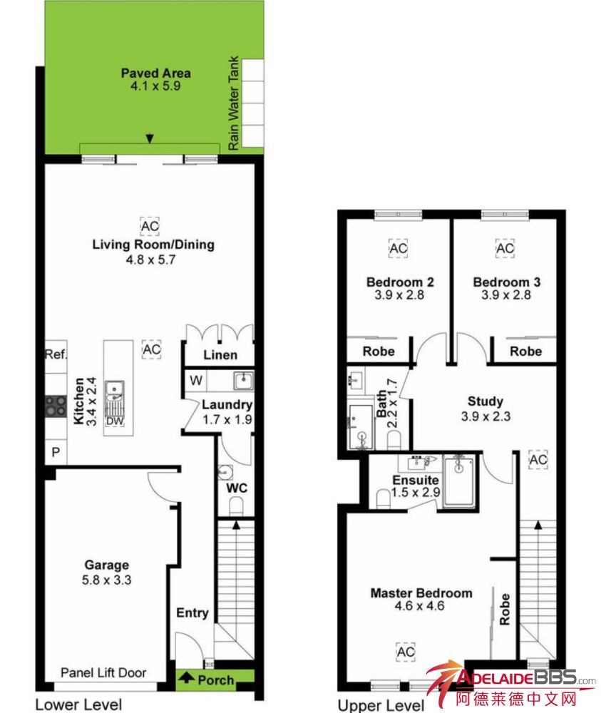
    $300主卧独立卫浴近Flinders和Westfield Marion 3室2.5卫的Townhouse带家具 出租的是Master Bedroom的主卧(4.6m × 4.6m)带卫生间 ensuite (1.5m × 2.9m) 租金是$300/周不包bills(账单平摊平均每人每周大概 ...

    回复

    顿大变局 发表于 昨天 11:30
    服装设计室急聘~急聘~急 急 急!!!
    现因工作需要急聘手工活兼职员工               (限女性,年龄不限)

    在家即可完成工作计件按时算时薪$60-$150   (现急招3人,先到先得)

    工作时间自由安排,计件结束即结算。

    需要请直接电话联系:+61  468183632(陈先生)
    Whatsapp: https://wa.me/+61468183632
    DrSteven 发表于 昨天 06:02
    wx:
    Dryongkang

    Copyright @ 2022 AdelaideBBS.com. All rights reserved. User Agreement

    客服号

    公众号