| 微信 : Adelaidehelp 联系邮箱 : [email protected] 开启辅助访问
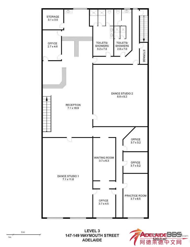
  • 阿德莱德CBD核心地段 149 Waymouth St,1

    查看数: 1108 | 评论数: 1 | 收藏 0
    关灯 | 提示:支持键盘翻页<-左 右->
      组图打开中,请稍候......
    发布时间: 9-10-2025 12:04

    正文摘要:

    阿德莱德CBD核心地段 149 Waymouth St,1000㎡大空间(两层,每层500㎡)正式开放,支持多种模式合作! 这里不仅仅是出租空间,而是为创新团队打造的舞台: 多元合作模式           & ...

    回复

    Copyright @ 2022 AdelaideBBS.com. All rights reserved. User Agreement

    客服号

    公众号